Дома под ключ в Воронеже
Отзывы из Яндекс Карт
4.9
87 отзывов
Дополнительные услуги 88%
2 154 оценок
Комплектации 89%
1 535 оценок
Планировки 90%
2 484 оценок
Проекты 93%
2 231 оценок
С
Варя К.04/15/2026 г.
Хорошо, что не послушала подругу, которая советовала другой материал. Брус 150 на 150 у БрусДома оказался ровным и сухим, дом 8х14 с панорамными окнами не дал усадку, какой боялись.
С
Вилен З.02/05/2026 г.
Зимой строили каркасный дом 6х7 с котельной для пмж — в мороз работали, материалы завозили вовремя, но один раз бензогенератор сломался, простояли полдня.
С
Григорий Т.04/16/2025 г.
Выбирали долго между разными компаниями, но в итоге остановились на "Брус дома" и ни капли не пожалели! Строили баню из профилированного бруса, процесс был организован идеально, от заливки фундамента до кровли все работы выполнены в оговорённые сроки и с безупречным качеством. Теперь каждые выходные всей семьёй наслаждаемся лёгким паром в собственной красивой и душистой бане.
Отзывы из Google Карт
4.8
52 отзывов
Дополнительные услуги 88%
2 154 оценок
Комплектации 89%
1 535 оценок
Планировки 90%
2 484 оценок
Проекты 93%
2 231 оценок
С
Аркадий Т.01/21/2026 г.
Заказал у БрусДома баню 6х6 под ключ. В процессе немного напрягало, что бригада пару раз переносила выезд из-за дождей, но в итоге управились за 2,5 недели. Сруб стоит ровно, конопатить пока рано, но визуально все плотно.
С
Чулпан И.07/27/2025 г.
Наконец-то сбылась наша мечта о собственном деревянном доме, и огромная благодарность за это компании «Брус дома»! С самого первого дня общения чувствовался высочайший профессионализм и искреннее желание помочь воплотить именно наш проект, а не просто построить типовой дом. Каждый этап, от создания проекта и подбора материалов финишной отделки, курировался персональным менеджером, который всегда был на связи и оперативно решал любые вопросы. Дом из профилированного бруса получился невероятно тёплым, уютным и дышащим, а качество сборки бригады мастеров просто безупречное — все углы и стыки идеальны, никаких щелей или сквозняков. Мы бесконечно рады, что доверили строительство нашей семейной крепости именно этой компании, и теперь с удовольствием рекомендуем «Брус дома» всем нашим друзьям!
Отзывы из 2гис
4.9
42 отзывов
Дополнительные услуги 88%
2 154 оценок
Комплектации 89%
1 535 оценок
Планировки 90%
2 484 оценок
Проекты 93%
2 231 оценок
С
Зиновий Щ.03/13/2026 г.
Баня 3х4 не делают, но я взял 4х4 с печкой и маленьким бассейном, влезло всё. Строили три дня, но бассейн течь дал на второй месяц, приехали заклеили, теперь держит.
С
Савелий Воробьёв02/14/2025 г.
С компанией Брус дома строил каркасный дом для постоянного проживания. Остался очень доволен. Цена адекватная, качество работ отличное, сроки соблюдены. Дом тёплый, светлый и очень комфортный. Особую благодарность хочу выразить прорабу Михаилу за внимательное отношение ко всем моим пожеланиям.


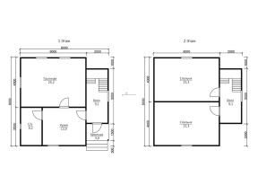
Проект №37 Дом в1,5 этажа 8х8

брус камерной сушки
Создайте свой план для этого проекта
и отправьте его нам на расчет в один клик.
Под ключ (с отделкой) 8х8 Профилированный 140х140 мм 2561000 Заказать
Под ключ (с отделкой) 8х8 Профилированный 190х140 мм 2781000 Заказать
Под усадку (без отделки) 8х8 Cруб дома 140х140 мм 1561000 Заказать
Под усадку (без отделки) 8х8 Cруб дома 190х140 мм 1771000 Заказать


Комплектация

Площадь застройки: м2
Длина: 8 м
Ширина: 8 м
Общая площадь: 113.03 м2
Под ключ (с отделкой) Под усадку (без отделки)
Фундамент Свайно-винтовой или ж/б сваи (рассчитываются отдельно).
Гидроизоляция фундамента Рубероид в два слоя.
Основание (обвязка) Из обрезного бруса (100х150 мм. 150х150 мм. 150х200 мм. согласно выбранному сечению бруса). Обработка антисептиком.
Количество рядов основания 2 2
Цокольное перекрытие Обрезной брус камерной сушки 100х150/50х200 мм. с шагом 600 мм. Обработка антисептиком. Обрезной брус естественной влажности 100х150/50х200 мм. с шагом 600 мм. Обработка антисептиком.
Пол черновой Обрезная доска камерной сушки 20х100 мм. Обрезная доска естественной влажности 20х100 мм.
Внешние стены Профилированный брус камерной сушки, сечением 90х140/140х140/190х140 мм. по выбранной комплектации. Два вида профиля: 
1. С двух сторон, прямой со снятой фаской. 2. Снаружи под «блок- хаус», внутри прямой.
Высота сруба: Сруб одноэтажный- 18 венцов
Сруб с мансардой- 18 венцов
Сруб в 1,5 этажа- 18 венцов, далее каркас с внешней отделкой имитацией бруса.
Сруб в 2 этажа- 37 венцов
Профилированный брус естественной влажности, сечением 90х140/140х140/190х140 мм. по выбранной комплектации. Два вида профиля: 
1. С двух сторон, прямой со снятой фаской. 2. Снаружи под «блок- хаус», внутри прямой.
Высота сруба: Сруб одноэтажный- 18 венцов
Сруб с мансардой- 18 венцов
Сруб в 1,5 этажа- 18 венцов, далее каркас с внешней отделкой имитацией бруса.
Сруб в 2 этажа- 37 венцов
Межвенцовый утеплитель Джут (льноджутовое полотно). Джут (льноджутовое полотно).
Перегородки 1-го этажа Профилированный брус камерной сушки, сечением 90х140 мм. Профилированный брус естественной влажности, сечением 90х140 мм.
Перегородки 2-го этажа Каркасные: доска камерной сушки 40х100 мм, обшитые евровагонкой хвойных пород, камерной сушки, толщиной 12,5 мм. сорт «АВ» (дома с мансардой и в 1,5 этажа). Брусовые: профилированный брус камерной сушки, сечением 90х140 мм. (дома двухэтажные). Каркасные: доска естественной влажности 40х100 мм. (дома с мансардой и в 1,5 этажа). Брусовые: профилированный брус естественной влажности, сечением 90х140 мм. (дома двухэтажные).
Сборка сруба Берёзовый нагель. Берёзовый нагель.
Соединение углов сруба «Тёплый угол» (коренной шип). «Тёплый угол» (коренной шип).
Высота от пола до потолка Сруб одноэтажный: 2,4 м. (18 венцов) Сруб с мансардой: 1-ый этаж- 2,4 м. (18 венцов)
2-ой этаж (мансарда)- 2,3 м.
Сруб в полтора и два этажа:
1-ый этаж 2,4 м ±4 см. (18 венцов)
2-ой этаж 2,4 м ±4 см. каркасные аттиковые стены (боковые) высотой 1,5 м. в полутораэтажном доме
2,4 м ±4 см (поднят брусом на 18 венцов) в двухэтажном доме.
Сруб одноэтажный: 2,5 м. (18 венцов) Сруб с мансардой: 1-ый этаж- 2,5 м. (18 венцов)
2-ой этаж (мансарда)- 2,4 м.
Сруб в полтора и два этажа:
1-ый этаж 2,5 м ±4 см. (18 венцов)
2-ой этаж 2,5 м ±4 см. каркасные аттиковые стены (боковые) высотой 1,5 м. в полутораэтажном доме
2,5 м ±4 см (поднят брусом на 18 венцов) в двухэтажном доме.
Утепление (пол, потолок, мансарда) Минеральная вата Knauf 150 мм. Отсутствует.
Пароизоляция (пол, потолок, мансарда) Ондутис R70. Отсутствует.
Пол чистовой Шпунтованная доска камерной сушки толщиной 36 мм. сорт АВ. по рейке 20х40 мм. либо шпунтованная ДСП 16 мм. по разряженной обрешётке из обрезной доски камерной сушки 20х100 мм. Отсутствует.
Потолки Евровагонка камерной сушки толщиной 12,5 мм. сорт АВ. Отсутствует.
Окна Деревянные, двойного остекления. Отсутствуют.
Двери Входная- металлическая, утеплённая (Россия). Межкомнатные- филёнчатые. Отсутствуют.
Наличники на окна и двери Наличник деревянный, строганый, камерной сушки 70-90 мм. Отсутствует.
Шиповка оконных и дверных проёмов (ройки) Да. Отсутствует.
Лестница (при наличии второго этажа) Деревянная, одно или двухмаршевая. Перила- заводские резные, балясины- заводские точеные, устанавливаются стартовые точёные столбы. Ступени 40х200 мм. Тетива лестницы- 90х140 мм. Отсутствует.
Крыша Двускатная, ломаная или вальмовая в соответствии с проектом. Двускатная, ломаная или вальмовая в соответствии с проектом.
Стропильная система Выполнена из обрезной доски камерной сушки 40х150 мм. Шаг установки стропильных ног 600 мм. Выполнена из обрезной доски естественной влажности 40х150 мм. Шаг установки стропильных ног 600 мм.
Обрешётка Выполняется из обрезной доски камерной сушки толщиной 20-22 мм. Шаг крепления обрешетки 300 мм. Контробрешётка выполняется из бруска камерной сушки 40х50 мм. Крепится по стропильным ногам (вентиляционный зазор). Выполняется из обрезной доски естественной влажности толщиной 20-22 мм. Шаг крепления обрешетки 300 мм. Контробрешётка выполняется из бруска естественной влажности 40х50 мм. Крепится по стропильным ногам (вентиляционный зазор).
Подкровельная мембрана Ондутис А100 Ондутис А100
Кровельное покрытие (на выбор) Ондулин, Черепица Ондулин. Ондулин, Черепица Ондулин.
Фронтоны (при наличии) Каркас из обрезной доски камерной сушки 40х150 мм. Обшиваются вагонкой камерной сушки толщиной 16 мм. сорт АВ по контррейке 20х40 мм. (вентиляционный зазор). Влаго-ветрозащита Ондутис А100. Монтаж вентиляционных решёток. Каркас из обрезной доски естественной влажности 40х150 мм. Обшиваются вагонкой камерной сушки толщиной 16 мм. сорт АВ по контррейке 20х40 мм. (вентиляционный зазор). Влаго-ветрозащита Ондутис А100. Монтаж вентиляционных решёток.
Свесы крыши Ширина 400 мм. Подшиваются вагонкой камерной сушки, сорт АВ. Ширина 400 мм. Подшиваются вагонкой камерной сушки, сорт АВ.
Терраса/балкон (при наличии) Устанавливаются опорные столбы из строганного бруса камерной сушки 140х140 мм. с компенсационными болтами под усадку. Устанавливаются опорные столбы из строганного бруса естественной влажности 140х140 мм. с компенсационными болтами под усадку.
Отделка потолка террасы/балкона Евровагонка камерной сушки толщиной 12,5 мм. сорт АВ. Отсутствует.
Пол террасы/балкона Шпунтованная доска камерной сушки толщиной 36 мм. сорт АВ. Отсутствует.
Ограждение террасы/балкона Перила- строганая доска. Балясины- точеные, фигурные. Либо ограждение в скандинавском стиле. Устанавливаются ступени у входа. Отсутствует.
Допуск на геометрические параметры сруба Составляет +/- 50 мм по длине с каждой стороны. Составляет +/- 50 мм по длине с каждой стороны.
Допускается стыковка бруса, вагонки и половой доски По всему периметру стен дома (если ширина и длина дома более 6,0 метров). Вагонки и доски пола в каждой отдельной комнате. По всему периметру стен дома (если ширина и длина дома более 6,0 метров).
Допуски по брусу, доске +/- 5 мм. +/- 5 мм.
В стоимость включена Доставка комплекта материала в радиусе 500 км. от г. Пестова Новгородской области и сборка дома на вашем участке. Доставка комплекта материала в радиусе 500 км. от г. Пестова Новгородской области и сборка дома на вашем участке.
Гарантия 5 лет. 2 года.
Бытовка строительная 2,0х3,0 м. каркасно-щитовая. Стоимость 23000 руб. Остаётся на участке Заказчика. Стоимость 23000 руб. Остаётся на участке Заказчика.
Туалет 1,0х1,0 м. каркасно-щитовой. Стоимость 12000 руб. Остаётся на участке Заказчика. Стоимость 12000 руб. Остаётся на участке Заказчика.
Генератор Стоимость аренды на весь срок строительства 10000 руб. ГСМ за счёт Заказчика. Стоимость аренды на весь срок строительства 10000 руб. ГСМ за счёт Заказчика.

Сооружение домов выполняется в двух вариантах: под усадку, когда дом отстаивается в течение некоторого времени и под ключ.

В зимнее время лучше строить дом из зимнего леса, в летний период - из сухого бруса (дерева камерной сушки).

Оптимальными для сада или дачи являются дома на винтовых сваях, в нашем каталоге можно найти одноэтажные и полуторатажные дома.

Для ПМЖ (постоянного проживания), предлагаем теплые и надежные коттеджи и дома на ленточном и плитном фундаменте.

Имеется несколько вариантов размера профбруса: 140х140 мм и 190х140 мм. Сборные дома из вертикального бруса строим с использованием бруса 140х190 мм.

Дополнительные услуги


Популярность проекта 37, представляющего собой полутораэтажный дом с размером 8х8 м. и разработанного компанией-производителем «Дачи из бруса», обусловлена несомненной практичностью и комфортностью сооружения в сочетании с самой доступной в Воронеже ценой. К отличительным особенностям здания относятся:

  • естественная эстетичность и экологичность сооружения из природного материала;
  • прочность и долговечность строения;
  • сравнительная легковесность конструкции и простота возведения;
  • продуманная и тщательно рассчитанная планировка внутренних помещений;
  • выносливость к температурным перепадам.

Общая площадь сооружения из профилированного бруса составляет 113.03 кв.м. и защищена двускатной крышей, крытой ондулином коричневой, красной или зеленой расцветки.

Богатый 15-ти летний опыт компании «Дачи из бруса» гарантирует наивысшее качество материалов и всего сооружения в целом. Мы готовы внести любые изменения в первоначальный проект, придавая вашему коттеджу особую неповторимость и индивидуальность.


Заказать или задать вопрос



Заказать или задать вопрос

Заказать звонок