Дома под ключ в Воронеже
Отзывы из Яндекс Карт
4.9
116 отзывов
Дополнительные услуги 88%
2 154 оценок
Комплектации 89%
1 535 оценок
Планировки 90%
2 484 оценок
Проекты 93%
2 231 оценок
С
Женя Пименов03/19/2026 г.
Заказал дом 6х9 с мансардой, в целом бригада работала споро, хотя пришлось пару раз звонить прорабу по поводу графика поставки бруса. Сейчас уже переехали, тепло, уютно, пахнет лесом.
С
Ариадна Мешкова04/17/2025 г.
Больше всего в работе компании Брус дома мне импонировала полная прозрачность процесса. Я всегда была в курсе, какие материалы завозятся, какой этап работ идет, и когда ожидать завершения. Это внушает доверие и спокойствие. Результат — крепкий и красивый дом из бруса, в который сразу захотелось переезжать.
Отзывы из Google Карт
4.8
70 отзывов
Дополнительные услуги 88%
2 154 оценок
Комплектации 89%
1 535 оценок
Планировки 90%
2 484 оценок
Проекты 93%
2 231 оценок
С
Герман Ц.04/01/2026 г.
Обратился по совету тестя. Строили дом 9х12 с эркером и балконом. Работали славяне, без хамства, инструмент свой, чай пили только на перерывах. Один раз пришлось переделывать кровлю — прохудилась в двух местах после дождя через неделю.
С
Лолита Сычёва02/15/2026 г.
Семья растёт, решили заказать у БрусДома двухэтажку 7х12 с санузлами на каждом этаже и панорамным остеклением. В процессе выяснилось, что не заложили в смету разводку водопровода по второму этажу — пришлось доплачивать.
С
Федя01/31/2026 г.
Заказал элитный вариант 12х12 с отделкой из кедра, вышло дорого, но красиво. Процесс строительства затянулся из-за того, что кедр везли издалека. Бригада работала аккуратно, но один угол дома собрали с небольшим смещением — на глаз не видно, но уровень показал.
С
Веста Дедова02/07/2025 г.
Мне очень понравилось, что мне не пришлось ни за чем следить и постоянно контролировать рабочих, поскольку вся команда проявила себя как ответственные и знающие специалисты, которым можно доверять.
Отзывы из 2гис
4.9
42 отзывов
Дополнительные услуги 88%
2 154 оценок
Комплектации 89%
1 535 оценок
Планировки 90%
2 484 оценок
Проекты 93%
2 231 оценок
С
Зита Карпова05/04/2026 г.
Дом 8х10 с панорамным остеклением и вторым светом — это что-то невероятное! Я боялась, что будет холодно, но уже вторую зиму живём, температура держится отлично. Монтажники, правда, один стеклопакет поцарапали, но на следующий день заменили без вопросов.
С
Валя Кулакова07/02/2025 г.
Спасибо за гибкость и понимание, ведь в процессе строительства нам пришлось немного скорректировать проект, и команда без лишних вопросов пошла нам навстречу.


Проект №5 Каркасная баня 6х6 1

каркас из строганой доски
Создайте свой план для этого проекта
и отправьте его нам на расчет в один клик.
Каркасный дом (150 мм) 6х6 Толщина утепления 150 мм 1841000 Заказать
Каркасный дом (200 мм) 6х6 Толщина утепления 200 мм 1971000 Заказать

Для того, чтобы получить свою личную планировку, воспользуйтесь планировщиком.

С помощью планировщика можно создать схемы, чертежи, эскизы, планы бани с мансардой, эркером, с одной или двумя спальнями. Вы получите личный проект, на 100% отвечающий вашим требованиям.

Вы сможете подобрать вид кровли. Вашу крышу можно сделать четырехскатной, двускатной и вальмовой. Двухскатная крыша - наиболее популярна в не очень больших банях.

Популярные размеры бани и бань на текущий момент: мини - до 36м2 (чаще всего, одноэтажные); компактные - от 36 до 70 квадратов (обычно 2х этажные); большие - от 70 м2 и больше.


Наши работы

Перейти в галерею


Комплектация

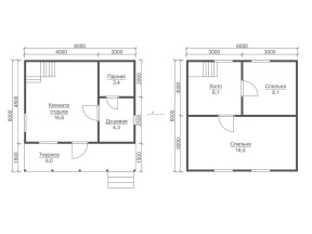
Площадь застройки: 36 м2
Длина: 6 м
Ширина: 6 м
Общая площадь: 66 м2
Исполнение Под ключ (с отделкой)
Фундамент Свайно-винтовой или ж/б сваи (рассчитываются отдельно).
Гидроизоляция фундамента Рубероид в два слоя.
Основание (обвязка) Из обрезного бруса 150х150 мм. 150х200 мм. согласно выбранной толщине утепления. Торцевая строганая доска камерной сушки 45х145/45х195+/-5 мм. Обработка антисептиком.
Цокольное перекрытие Строганая доска камерной сушки 45х145/45х195+/-5 мм. с шагом 590 мм. Обработка антисептиком.
Пол черновой Обрезная доска камерной сушки 20х100 мм.
Влаго-ветрозащита чернового пола Мембрана Ондутис А100.
Внешние стены Стойки каркаса из строганой доски камерной сушки 45х145/45х195+/-5 мм. с шагом 590 мм. Верхняя двойная и нижняя обвязки из строганой доски камерной сушки 45х145/45х195+/-5 мм. Разгрузочный ригель из строганой доски 45х145+/-5 мм. Укосины из строганой доски 20х95 мм.
Перегородки Стойки каркаса из строганой доски камерной сушки 45х95+/-5 мм. с шагом 590 мм. Верхняя двойная и нижняя обвязки из строганой доски 45х95+/-5 мм. Разгрузочный ригель из строганой доски камерной сушки 45х145+/-5 мм. Укосины из строганой доски камерной сушки 20х95 мм.
Сборка каркаса На гвозди.
Высота от пола до потолка Баня одноэтажная: 2,5 м. Баня с мансардой: 1-ый этаж- 2,5 м.
2-ой этаж (мансарда)- 2,3 м.
Баня в полтора и два этажа:
1-ый этаж 2,5 м.
2-ой этаж 2,4 м. в полутораэтажной бане.
2,5 м. в двухэтажной бане.
Внешняя отделка стен Имитация бруса камерной сушки, сорт АВ, толщиной 17 мм. Монтаж через строганый брусок камерной сушки 45х45+/-5 мм. (вентилируемый фасад). Влаго-ветрозащитная мембрана- Ондутис А100.
Внутренняя отделка стен, перегородок Евровагонка камерной сушки, сорт АВ, толщиной 12,5 мм. по строганой рейке 20х40+/-5 мм. либо ГКЛ 12,5 мм.
Отделка потолка Евровагонка камерной сушки, сорт АВ, толщиной 12,5 мм. по строганой рейке 20х40+/-5 мм. либо ГКЛ 12,5 мм.
Пол чистовой Шпунтованная доска камерной сушки толщиной 35-36 мм. сорт АВ. по строганой рейке 20х40+/-5 мм. либо шпунтованная ДСП 16 мм. по разряженной обрешётке из строганой доски камерной сушки 20х95+/-5 мм.
Утепление (пол, потолок) Минеральная вата Knauf 150/200 мм. согласно выбранной толщине утепления.
Утепление стен Плитный утеплитель Rockwool, толщиной 150/200 мм. согласно выбранной толщине утепления.
Звукоизоляция перегородок Плитный утеплитель Rockwool, толщиной 100 мм.
Пароизоляция (стены, перегородки, пол, потолок) Плёнка Ондутис R70. Дополнительная герметизация нахлёстов/примыканий пароизоляционной плёнки клейкой лентой Delta.
Отделка парной Отделка осиновой вагонкой камерной сушки, сорт АВ по фольге, через строганую рейку 20х40+/-5 мм. (вентиляционный зазор). Установка пологов из осины.
Окна Двухкамерные стеклопакеты ПВХ белого цвета, профиль 60 мм. В комплекте: отливы, подоконники, москитные сетки.
Двери Входная- металлическая, утеплённая (Россия). Межкомнатные- филёнчатые. В душевую/парную- клиновые (банные).
Наличники на окна и двери Наличник деревянный, строганый, камерной сушки 70-90 мм. с двух сторон.
Лестница (при наличии второго этажа) Деревянная, одно или двухмаршевая. Перила- заводские резные, балясины- заводские точеные, устанавливаются стартовые точёные столбы. Ступени 40х200 мм. Тетива лестницы- 90х140 мм.
Крыша Двускатная, ломаная или вальмовая в соответствии с проектом.
Стропильная система Выполнена из строганой доски камерной сушки 45х145/45х195+/-5 мм. Шаг установки стропил 590 мм.
Обрешётка Выполняется из строганой доски камерной сушки толщиной 20х95+/-5 мм. Шаг крепления обрешетки 350 мм. Контробрешётка выполняется из строганого бруска камерной сушки 45х45+/-5 мм. Крепится по стропилам (вентиляционный зазор).
Подкровельная мембрана Ондутис А100
Кровельное покрытие (на выбор) Металлочерепица 0,45 мм. Цвет на выбор.
Фронтоны (при наличии) Каркас из строганой доски камерной сушки 45х145/45х195+/-5 мм. Обшиваются имитацией бруса камерной сушки, сорт АВ, толщиной 17 мм. Монтаж через строганый брусок камерной сушки 45х45+/-5 мм. (вентилируемый фасад). Влаго-ветрозащитная мембрана- Ондутис А100. Монтаж вентиляционных решёток.
Свесы крыши Ширина 400 мм. Подшиваются вагонкой камерной сушки, сорт АВ.
Терраса/балкон (при наличии) Устанавливаются опорные столбы из строганного бруса камерной сушки 140х140 мм.
Отделка потолка террасы/балкона Евровагонка камерной сушки толщиной 12,5 мм. сорт АВ.
Пол террасы/балкона Шпунтованная доска камерной сушки толщиной 35-36 мм. сорт АВ.
Ограждение террасы/балкона Перила- строганая доска. Балясины- точеные, фигурные. Либо ограждение в скандинавском стиле. Устанавливаются ступени у входа.
Допуск на геометрические параметры Составляет +/- 50 мм по длине с каждой стороны.
Допускается стыковка имитации бруса, вагонки и половой доски По всему периметру стен бани (если ширина и длина бани более 6,0 метров). Вагонки и доски пола в каждой отдельной комнате.
Допуски по имитации бруса, вагонке, доске +/- 5 мм.
В стоимость включена Доставка комплекта материала в радиусе 500 км. от г. Пестова Новгородской области и сборка дома на вашем участке.
Гарантия 5 лет.
Печь По запросу.
Бытовка строительная 2,0х3,0 м. каркасно-щитовая. Стоимость 23000 руб. Остаётся на участке Заказчика.
Туалет 1,0х1,0 м. каркасно-щитовой. Стоимость 12000 руб. Остаётся на участке Заказчика.
Генератор Стоимость аренды на весь срок строительства 15000 руб. ГСМ за счёт Заказчика.

Сооружение каркасных бань может выполняться в нескольких видах: под усадку, когда сруб будет отстаиваться определенное время и сразу под ключ.

Зимой мастера рекомендуют строить баню в морозную погоду, чтобы каркас не промок, в летний период - не под дождем.

Подходящими для дачи или сада являются баньки на винтовых сваях, на нашем сайте имеются одноэтажные и полуторатажные бани.

Имеется 2 варианта толщины утепления: 150 мм и 200 мм. Каркасные бани с толщиной стен 200 мм получаются теплее, но стоят дороже.

Дополнительные услуги



Популярные проекты


Двухэтажные дома из бруса Бани из бруса 6х4 Маленькие бани из бруса
Дома из бруса

Заказать или задать вопрос



Заказать или задать вопрос

Заказать звонок