Дома под ключ в Воронеже
Отзывы из Яндекс Карт
4.9
82 отзывов
Дополнительные услуги 88%
2 154 оценок
Комплектации 89%
1 535 оценок
Планировки 90%
2 484 оценок
Проекты 93%
2 231 оценок
С
Яков Розанов04/14/2026 г.
Ребята из «БрусДома» проконсультировали по поводу утепления пола в доме 7х11 с цоколем. Сделали керамзитовую засыпку и черновой пол. Пока всё держится, не скрипит. Но по срокам немного обманули — обещали за 4 месяца, сделали за 5.
С
Мишель Алёхина02/21/2026 г.
У нас дом 6х10 с двумя входами и навесом для машины, живём второй год. Летом заметила, что угол крыльца немного просел, позвонила — через неделю приехали поддомкратили, пока бесплатно. Надеюсь, больше не поплывёт.
С
Федор Блинов04/29/2025 г.
Огромное спасибо за оперативность и честность. Мне нужна была баня под ключ в сжатые сроки, и компания смогла организовать процесс без потери качества. Привезли качественный материал, собрали без задержек. Теперь у меня есть своя парная, которой я очень горжусь.
Отзывы из Google Карт
4.8
49 отзывов
Дополнительные услуги 88%
2 154 оценок
Комплектации 89%
1 535 оценок
Планировки 90%
2 484 оценок
Проекты 93%
2 231 оценок
С
Елена Позднякова05/06/2026 г.
Когда выбирала компанию, читала отзывы и сомневалась, слишком уж все гладко звучало. На деле не без шероховатостей, конечно, но в целом — да, добротно. Бригада после себя даже мусор убрала, что было приятным сюрпризом.
С
Лика Чижова01/29/2026 г.
Муж настоял на доме 7х8 с панорамным остеклением, я боялась, что зимой холодно будет, но компания отличные стеклопакеты поставила, сейчас второй год живём, единственное — кран на кухне тек через неделю после сдачи, свои починили.
С
Нона Фомина02/25/2025 г.
Я ощущала постоянную заботу и поддержку на протяжении всего пути от первого звонка в компанию до момента сдачи объекта, и это чувство уверенности в подрядчике бесценно при таком серьезном шаге, как строительство дома.
Отзывы из 2гис
4.9
42 отзывов
Дополнительные услуги 88%
2 154 оценок
Комплектации 89%
1 535 оценок
Планировки 90%
2 484 оценок
Проекты 93%
2 231 оценок
С
Тамара Королькова03/02/2026 г.
Первый дом строили с другой компанией, получили кучу проблем. С «БрусДома» решились на второй, уже для родителей. Взяли одноэтажный 6х9 с террасой и котельной. Работой довольна, даже дали гарантию на усадку. Но родители жалуются, что в спальне розеток мал
С
Демид Ч.06/25/2025 г.
Огромная благодарность всей команде за возведение нашего каркасного дома — с самого начала чувствовался профессиональный подход, все этапы были объяснены доступно, а результат превзошел все ожидания по уюту и теплоте.


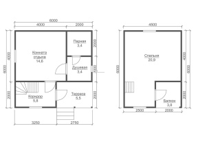
Проект №9 Каркасная баня 6х6 3

каркас из строганой доски
Создайте свой план для этого проекта
и отправьте его нам на расчет в один клик.
Каркасный дом (150 мм) 6х6 Толщина утепления 150 мм 1791000 Заказать
Каркасный дом (200 мм) 6х6 Толщина утепления 200 мм 1941000 Заказать

Для того, чтобы получить свою личную планировку, воспользуйтесь планировщиком.

С помощью планировщика можно создать схемы, чертежи, эскизы, планы бани с мансардой, эркером, с одной или двумя спальнями. Вы получите личный проект, на 100% отвечающий вашим требованиям.

Вы сможете подобрать вид кровли. Вашу крышу можно сделать четырехскатной, двускатной и вальмовой. Двухскатная крыша - наиболее популярна в не очень больших банях.

Популярные размеры бани и бань на текущий момент: мини - до 36м2 (чаще всего, одноэтажные); компактные - от 36 до 70 квадратов (обычно 2х этажные); большие - от 70 м2 и больше.


Наши работы

Перейти в галерею


Комплектация

Площадь застройки: 36 м2
Длина: 6 м
Ширина: 6 м
Общая площадь: 57 м2
Исполнение Под ключ (с отделкой)
Фундамент Свайно-винтовой или ж/б сваи (рассчитываются отдельно).
Гидроизоляция фундамента Рубероид в два слоя.
Основание (обвязка) Из обрезного бруса 150х150 мм. 150х200 мм. согласно выбранной толщине утепления. Торцевая строганая доска камерной сушки 45х145/45х195+/-5 мм. Обработка антисептиком.
Цокольное перекрытие Строганая доска камерной сушки 45х145/45х195+/-5 мм. с шагом 590 мм. Обработка антисептиком.
Пол черновой Обрезная доска камерной сушки 20х100 мм.
Влаго-ветрозащита чернового пола Мембрана Ондутис А100.
Внешние стены Стойки каркаса из строганой доски камерной сушки 45х145/45х195+/-5 мм. с шагом 590 мм. Верхняя двойная и нижняя обвязки из строганой доски камерной сушки 45х145/45х195+/-5 мм. Разгрузочный ригель из строганой доски 45х145+/-5 мм. Укосины из строганой доски 20х95 мм.
Перегородки Стойки каркаса из строганой доски камерной сушки 45х95+/-5 мм. с шагом 590 мм. Верхняя двойная и нижняя обвязки из строганой доски 45х95+/-5 мм. Разгрузочный ригель из строганой доски камерной сушки 45х145+/-5 мм. Укосины из строганой доски камерной сушки 20х95 мм.
Сборка каркаса На гвозди.
Высота от пола до потолка Баня одноэтажная: 2,5 м. Баня с мансардой: 1-ый этаж- 2,5 м.
2-ой этаж (мансарда)- 2,3 м.
Баня в полтора и два этажа:
1-ый этаж 2,5 м.
2-ой этаж 2,4 м. в полутораэтажной бане.
2,5 м. в двухэтажной бане.
Внешняя отделка стен Имитация бруса камерной сушки, сорт АВ, толщиной 17 мм. Монтаж через строганый брусок камерной сушки 45х45+/-5 мм. (вентилируемый фасад). Влаго-ветрозащитная мембрана- Ондутис А100.
Внутренняя отделка стен, перегородок Евровагонка камерной сушки, сорт АВ, толщиной 12,5 мм. по строганой рейке 20х40+/-5 мм. либо ГКЛ 12,5 мм.
Отделка потолка Евровагонка камерной сушки, сорт АВ, толщиной 12,5 мм. по строганой рейке 20х40+/-5 мм. либо ГКЛ 12,5 мм.
Пол чистовой Шпунтованная доска камерной сушки толщиной 35-36 мм. сорт АВ. по строганой рейке 20х40+/-5 мм. либо шпунтованная ДСП 16 мм. по разряженной обрешётке из строганой доски камерной сушки 20х95+/-5 мм.
Утепление (пол, потолок) Минеральная вата Knauf 150/200 мм. согласно выбранной толщине утепления.
Утепление стен Плитный утеплитель Rockwool, толщиной 150/200 мм. согласно выбранной толщине утепления.
Звукоизоляция перегородок Плитный утеплитель Rockwool, толщиной 100 мм.
Пароизоляция (стены, перегородки, пол, потолок) Плёнка Ондутис R70. Дополнительная герметизация нахлёстов/примыканий пароизоляционной плёнки клейкой лентой Delta.
Отделка парной Отделка осиновой вагонкой камерной сушки, сорт АВ по фольге, через строганую рейку 20х40+/-5 мм. (вентиляционный зазор). Установка пологов из осины.
Окна Двухкамерные стеклопакеты ПВХ белого цвета, профиль 60 мм. В комплекте: отливы, подоконники, москитные сетки.
Двери Входная- металлическая, утеплённая (Россия). Межкомнатные- филёнчатые. В душевую/парную- клиновые (банные).
Наличники на окна и двери Наличник деревянный, строганый, камерной сушки 70-90 мм. с двух сторон.
Лестница (при наличии второго этажа) Деревянная, одно или двухмаршевая. Перила- заводские резные, балясины- заводские точеные, устанавливаются стартовые точёные столбы. Ступени 40х200 мм. Тетива лестницы- 90х140 мм.
Крыша Двускатная, ломаная или вальмовая в соответствии с проектом.
Стропильная система Выполнена из строганой доски камерной сушки 45х145/45х195+/-5 мм. Шаг установки стропил 590 мм.
Обрешётка Выполняется из строганой доски камерной сушки толщиной 20х95+/-5 мм. Шаг крепления обрешетки 350 мм. Контробрешётка выполняется из строганого бруска камерной сушки 45х45+/-5 мм. Крепится по стропилам (вентиляционный зазор).
Подкровельная мембрана Ондутис А100
Кровельное покрытие (на выбор) Металлочерепица 0,45 мм. Цвет на выбор.
Фронтоны (при наличии) Каркас из строганой доски камерной сушки 45х145/45х195+/-5 мм. Обшиваются имитацией бруса камерной сушки, сорт АВ, толщиной 17 мм. Монтаж через строганый брусок камерной сушки 45х45+/-5 мм. (вентилируемый фасад). Влаго-ветрозащитная мембрана- Ондутис А100. Монтаж вентиляционных решёток.
Свесы крыши Ширина 400 мм. Подшиваются вагонкой камерной сушки, сорт АВ.
Терраса/балкон (при наличии) Устанавливаются опорные столбы из строганного бруса камерной сушки 140х140 мм.
Отделка потолка террасы/балкона Евровагонка камерной сушки толщиной 12,5 мм. сорт АВ.
Пол террасы/балкона Шпунтованная доска камерной сушки толщиной 35-36 мм. сорт АВ.
Ограждение террасы/балкона Перила- строганая доска. Балясины- точеные, фигурные. Либо ограждение в скандинавском стиле. Устанавливаются ступени у входа.
Допуск на геометрические параметры Составляет +/- 50 мм по длине с каждой стороны.
Допускается стыковка имитации бруса, вагонки и половой доски По всему периметру стен бани (если ширина и длина бани более 6,0 метров). Вагонки и доски пола в каждой отдельной комнате.
Допуски по имитации бруса, вагонке, доске +/- 5 мм.
В стоимость включена Доставка комплекта материала в радиусе 500 км. от г. Пестова Новгородской области и сборка дома на вашем участке.
Гарантия 5 лет.
Печь По запросу.
Бытовка строительная 2,0х3,0 м. каркасно-щитовая. Стоимость 23000 руб. Остаётся на участке Заказчика.
Туалет 1,0х1,0 м. каркасно-щитовой. Стоимость 12000 руб. Остаётся на участке Заказчика.
Генератор Стоимость аренды на весь срок строительства 15000 руб. ГСМ за счёт Заказчика.

Сооружение каркасных бань может выполняться в нескольких видах: под усадку, когда сруб будет отстаиваться определенное время и сразу под ключ.

Зимой мастера рекомендуют строить баню в морозную погоду, чтобы каркас не промок, в летний период - не под дождем.

Подходящими для дачи или сада являются баньки на винтовых сваях, на нашем сайте имеются одноэтажные и полуторатажные бани.

Имеется 2 варианта толщины утепления: 150 мм и 200 мм. Каркасные бани с толщиной стен 200 мм получаются теплее, но стоят дороже.

Дополнительные услуги



Популярные проекты


Каркасные дома 7х9 Бани из бруса с террасой Маленькие бани из бруса
Дома из бруса

Заказать или задать вопрос



Заказать или задать вопрос

Заказать звонок