Дома под ключ в Воронеже
Отзывы из Яндекс Карт
4.9
81 отзывов
Дополнительные услуги 88%
2 154 оценок
Комплектации 89%
1 535 оценок
Планировки 90%
2 484 оценок
Проекты 93%
2 231 оценок
С
Матвей Винокуров04/02/2026 г.
Когда подписывал договор, немного смутил пункт про возможное увеличение стоимости материалов, но заморозили цены на период нашей стройки.
С
Аксинья Ширяева03/14/2026 г.
Сначала думали взять готовый проект 6х9 с террасой, потом переделали под себя. Сотрудники нормально отнеслись, внесли изменения. Единственное — увеличили срок на месяц, но террасу сделали шикарную.
С
Викентий Лапшин01/04/2026 г.
У них много типовых проектов, но мне хотелось что-то свое. Доплатил за изменение планировки в стандартном доме 9х12. Чертили вместе с их архитектором, он много практичных советов дал, о которых я не подумал бы. В итоге получился индивидуальный проект без космической цены.
С
Женя Т.04/28/2025 г.
Спасибо бригаде, что возводила мой каркасный дом: работали даже в непогоду, но всегда аккуратно и с соблюдением технологии, так что теперь живу в доме, который не боится ни ветра, ни мороза.
Отзывы из Google Карт
4.8
49 отзывов
Дополнительные услуги 88%
2 154 оценок
Комплектации 89%
1 535 оценок
Планировки 90%
2 484 оценок
Проекты 93%
2 231 оценок
С
Есения Клюева02/23/2026 г.
Когда увидела свой дом из бруса впервые собранным, даже прослезилась немного. Он такой настоящий, пахнет деревом и чем-то родным. Кажется, будто он всегда тут стоял.
С
Дженни Свиридова06/30/2025 г.
Баня получилась лучше, чем на картинке в каталоге — настолько тщательно подобрали древесину и продумали каждую деталь, что теперь это наше любимое место для встреч с друзьями.
Отзывы из 2гис
4.9
42 отзывов
Дополнительные услуги 88%
2 154 оценок
Комплектации 89%
1 535 оценок
Планировки 90%
2 484 оценок
Проекты 93%
2 231 оценок
С
Тарас И.05/10/2026 г.
Добавлю, что у них отличная логистика, материал привозят точно в срок. Строил дом 9х11 с гаражом и котельной, ни разу не было простоя из-за нехватки бруса или кровли. Единственное, забыли доставить утеплитель для перекрытий, но привезли на следующий день.
С
Клавдия Карпова03/15/2025 г.
Моя благодарность не знает границ! Баня получилась просто загляденье — красивая, аккуратная, вся из ровного добротного бруса. Строители работали аккуратно, убирали за собой, не повредили ни один кустик на участке. Приятно иметь дело с настоящими мастерами, которые любят своё дело. Обязательно обращусь снова для постройки гостевого домика.


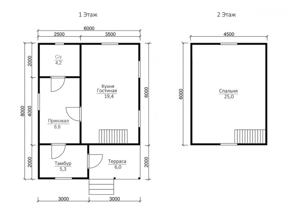
Проект №21 Дом с мансардой 6х8

каркас из строганой доски
Создайте свой план для этого проекта
и отправьте его нам на расчет в один клик.
Каркасный дом (150 мм) 6х8 Толщина утепления 150 мм 1781000 Заказать
Каркасный дом (200 мм) 6х8 Толщина утепления 200 мм 1951000 Заказать

Для того, чтобы получить свою личную планировку, воспользуйтесь нашим планировщиком.

При помощи планировщика можно сделать максимально подходящие планы, схемы, эскизы, чертежи уникального дома с мансардой, эркером, с одной, двумя или тремя спальнями. В результате получится проект с современной планировкой, полностью отвечающий вашим запросам.

Вы можете выбрать тип кровли: четырехскатная, двускатная и вальмовая. Двухскатную считают особенно востребованной у малометражных домов.

Самые востребованные размеры коттеджей и домов на сегодняшний день: мини - до 50 кв. М (как правило, одноэтажные); компактные - от 70 до 100 кв. М (обычно 2-этажные); большие дома - начиная от 150 кв. М и более.

Строим дуплексы - каркасные дома с 2-мя входами, рассчитанные на проживание 2-х семей. Дома строятся сразу для двух хозяев, они разделены на две половины, для обоих половин - отдельный вход.


Наши работы

Перейти в галерею


Комплектация

Площадь застройки: 48 м2
Длина: 6 м
Ширина: 8 м
Общая площадь: 64.3 м2
Исполнение Под ключ (с отделкой)
Фундамент Свайно-винтовой или ж/б сваи (рассчитываются отдельно).
Гидроизоляция фундамента Рубероид в два слоя.
Основание (обвязка) Из обрезного бруса 150х150 мм. 150х200 мм. согласно выбранной толщине утепления. Торцевая доска строганая 45х145/45х195+/-5 мм. согласно выбранной толщине утепления. Обработка антисептиком.
Цокольное перекрытие Строганая доска камерной сушки 45х145/45х195+/-5 мм. с шагом 590 мм. Обработка антисептиком.
Пол черновой Обрезная доска камерной сушки 20х100 мм.
Влаго-ветрозащита чернового пола Мембрана Ондутис А100.
Внешние стены Стойки каркаса из строганой доски камерной сушки 45х145/45х195+/-5 мм. с шагом 590 мм. Верхняя двойная и нижняя обвязки из строганой доски камерной сушки 45х145/45х195+/-5 мм. Разгрузочный ригель из строганой доски 45х145+/-5 мм. Укосины из строганой доски 20х95 мм.
Перегородки Стойки каркаса из строганой доски камерной сушки 45х95+/-5 мм. с шагом 590 мм. Верхняя двойная и нижняя обвязки из строганой доски 45х95+/-5 мм. Разгрузочный ригель из строганой доски камерной сушки 45х145+/-5 мм. Укосины из строганой доски камерной сушки 20х95 мм.
Сборка каркаса На гвозди.
Высота от пола до потолка Дом одноэтажный: 2,5 м. Дом с мансардой: 1-ый этаж- 2,5 м.
2-ой этаж (мансарда)- 2,3 м.
Дом в полтора и два этажа:
1-ый этаж 2,5 м.
2-ой этаж 2,4 м. в полутораэтажном доме
2,5 м. в двухэтажном доме.
Внешняя отделка стен Имитация бруса камерной сушки, сорт АВ, толщиной 17 мм. Монтаж через строганый брусок камерной сушки 45х45+/-5 мм. (вентилируемый фасад). Влаго-ветрозащитная мембрана- Ондутис А100.
Внутренняя отделка стен, перегородок Евровагонка камерной сушки, сорт АВ, толщиной 12,5 мм. по строганой рейке 20х40+/-5 мм. либо ГКЛ 12,5 мм.
Отделка потолка Евровагонка камерной сушки, сорт АВ толщиной, 12,5 мм. по строганой рейке 20х40+/-5 мм. либо ГКЛ 12,5 мм.
Пол чистовой Шпунтованная доска камерной сушки толщиной 35-36 мм. сорт АВ. по строганой рейке 20х40+/-5 мм. либо шпунтованная ДСП 16 мм. по разряженной обрешётке из строганой доски камерной сушки 20х95+/-5 мм.
Утепление (пол, потолок) Минеральная вата Knauf 150/200 мм. согласно выбранной толщине утепления.
Утепление стен Плитный утеплитель Rockwool, толщиной 150/200 мм. согласно выбранной толщине утепления.
Звукоизоляция перегородок Плитный утеплитель Rockwool, толщиной 100 мм.
Пароизоляция (стены, перегородки, пол, потолок) Плёнка Ондутис R70. Дополнительная герметизация нахлёстов/примыканий пароизоляционной плёнки клейкой лентой Delta.
Окна Двухкамерные стеклопакеты ПВХ белого цвета, профиль 60 мм. В комплекте: отливы, подоконники, москитные сетки.
Двери Входная- металлическая, утеплённая (Россия). Межкомнатные- филёнчатые.
Наличники на окна и двери Наличник деревянный, строганый, камерной сушки 70-90 мм. с двух сторон.
Лестница (при наличии второго этажа) Деревянная, одно или двухмаршевая. Перила- заводские резные, балясины- заводские точеные, устанавливаются стартовые точёные столбы. Ступени 40х200 мм. Тетива лестницы- 90х140 мм.
Крыша Двускатная, ломаная или вальмовая в соответствии с проектом.
Стропильная система Выполнена из строганой доски камерной сушки 45х145/45х195+/-5 мм. Шаг установки стропил 590 мм.
Обрешётка Выполняется из строганой доски камерной сушки толщиной 20х95+/-5 мм. Шаг крепления обрешетки 350 мм. Контробрешётка выполняется из строганого бруска камерной сушки 45х45+/-5 мм. Крепится по стропилам (вентиляционный зазор).
Подкровельная мембрана Ондутис А100
Кровельное покрытие (на выбор) Металлочерепица 0,45 мм. Цвет на выбор.
Фронтоны (при наличии) Каркас из строганой доски камерной сушки 45х145/45х195+/-5 мм. Обшиваются имитацией бруса камерной сушки, сорт АВ, толщиной 17 мм. Монтаж через строганый брусок камерной сушки 45х45+/-5 мм. (вентилируемый фасад). Влаго-ветрозащитная мембрана- Ондутис А100. Монтаж вентиляционных решёток.
Свесы крыши Ширина 400 мм. Подшиваются вагонкой камерной сушки, сорт АВ.
Терраса/балкон (при наличии) Устанавливаются опорные столбы из строганного бруса камерной сушки 140х140 мм.
Отделка потолка террасы/балкона Евровагонка камерной сушки толщиной 12,5 мм. сорт АВ.
Пол террасы/балкона Шпунтованная доска камерной сушки толщиной 35-36 мм. сорт АВ.
Ограждение террасы/балкона Перила- строганая доска. Балясины- точеные, фигурные. Либо ограждение в скандинавском стиле. Устанавливаются ступени у входа.
Допуск на геометрические параметры Составляет +/- 50 мм по длине с каждой стороны.
Допускается стыковка имитации бруса, вагонки и половой доски По всему периметру стен дома (если ширина и длина дома более 6,0 метров). Вагонки и доски пола в каждой отдельной комнате.
Допуски по имитации бруса, вагонке, доске +/- 5 мм.
В стоимость включена Доставка комплекта материала в радиусе 500 км. от г. Пестова Новгородской области и сборка дома на вашем участке.
Гарантия 5 лет.
Бытовка строительная 2,0х3,0 м. каркасно-щитовая. Стоимость 23000 руб. Остаётся на участке Заказчика.
Туалет 1,0х1,0 м. каркасно-щитовой. Стоимость 12000 руб. Остаётся на участке Заказчика.
Генератор Стоимость аренды на весь срок строительства 15000 руб. ГСМ за счёт Заказчика.

Сооружение каркасных домов осуществляется в 2-х видах: под ключ и под усадку, когда сруб будет отстаиваться определенное время.

В зимний период желательно строить дом в морозную погоду, чтобы каркас не успел промокнуть, в летний период - не под дождем.

Наиболее подходящими для дачи или сада являются бюджетные домики на винтовых сваях, в нашем онлайн-каталоге представлены одноэтажные и полуторатажные дома.

Для постоянного проживания, предлагаем очень теплые и надежные одноэтажные и двухэтажные дома на плитных и ленточных фундаментах.

Мы предлагаем 2 варианта толщины утепления: 200 мм и 150 мм. Каркасные дома с толщиной утеплителя 200 мм получаются теплее, но стоят дороже.

Дополнительные услуги


Каркасный дом для загородного участка – оптимальное сочетание стоимости и сроков возведения.

Предлагаем для реализации проект 21 – полутораэтажный дом по каркасной технологии с размером 6х8 м.. Общая площадь всех помещений – 64.3 кв.м..

Гостинно-столовая зона, место для сна и отдыха и санузел расположены по классической планировке. Высота потолков – 2,45 м. Во всех жилых помещениях предусмотрена установка двойных окон в зимнем варианте – в светлое время суток в доме не потребуется электрическое освещение. Межкомнатные двери с филенками, 0,8х2,0 м.

Крыша дома – двускатная, кровельное покрытие – ондулин. Цвет крыши и внешнюю отделку дома вы выбираете сами согласно своему вкусу и предпочтениям, а наши специалисты возведут дом для вас в Воронеже с учетом всех пожеланий.


Популярные проекты


Каркасные дома 4х10 Каркасные дома более 100 кв.м. Одноэтажные бани из бруса
хит продаж
Тип: с террасой
Общая площадь: 2
1901500
от 1811000
хит продаж
Тип:
Общая площадь: 2
2342500
от 2231000
хит продаж
Тип:
Общая площадь: 2
1607500
от 1531000
Дома из бруса

Заказать или задать вопрос



Заказать или задать вопрос

Заказать звонок