Дома под ключ в Воронеже
Отзывы из Яндекс Карт
4.9
117 отзывов
Дополнительные услуги 88%
2 154 оценок
Комплектации 89%
1 535 оценок
Планировки 90%
2 484 оценок
Проекты 93%
2 231 оценок
С
Ясмина Д.06/07/2025 г.
Спасибо за теплый дом – мы специально замеряли тепловизором зимой, и картина была идеальной, никаких мостиков холода, что подтвердило правильность выбора технологии и добросовестность сборки стен и кровли вашими мастерами.
Отзывы из Google Карт
4.8
71 отзывов
Дополнительные услуги 88%
2 154 оценок
Комплектации 89%
1 535 оценок
Планировки 90%
2 484 оценок
Проекты 93%
2 231 оценок
С
Рената04/04/2026 г.
Дом 9х9 с мансардой получился просторным. Дети счастливы, что у каждого своя комната наверху. Даже кот облюбовал там уголок под крышей.
С
Оля Макарова02/09/2026 г.
Потом оказалось, что в доме 6х7,5 с котельной не продумали место под бойлер. Пришлось вешать его в коридоре, кривовато. Компания сказала, что это моя инициатива по изменению проекта, ну ладно, бывает.
С
Венедикт Ф.02/15/2025 г.
Хочу поблагодарить бригаду строителей за аккуратность и внимание к деталям, при возведении бани они учли все нюансы моего участка и теперь это самое любимое место для встреч с друзьями.
Отзывы из 2гис
4.9
42 отзывов
Дополнительные услуги 88%
2 154 оценок
Комплектации 89%
1 535 оценок
Планировки 90%
2 484 оценок
Проекты 93%
2 231 оценок
С
Юрий Герасимов03/17/2026 г.
Дом 9х13 с сауной и бассейном, проект сложный, БрусДома справились, но цены на допы кусались. Например, за монтаж лестницы на мансарду взяли как за отдельный дом.
С
Шанель Королькова01/06/2026 г.
Долго не решалась на деревянный дом, думала пожароопасно, но ребята из «БрусДома» убедили пропитками. Сделали нам одноэтажку 10х12 с гаражом и котельной, всё чётко, только вот электрику пришлось переделывать — их мастер не так провода развёл.
С
Юлиан05/18/2025 г.
Я приятно удивлен что даже по прошествии нескольких месяцев ко мне проявили внимание поинтересовавшись самочувствием дома в первую зиму что говорит о долгосрочных обязательствах фирмы.


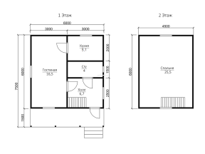
Проект №18 Дом с террасой 7,5х6

каркас из строганой доски
Создайте свой план для этого проекта
и отправьте его нам на расчет в один клик.
Каркасный дом (150 мм) 6х7,5 Толщина утепления 150 мм 1761000 Заказать
Каркасный дом (200 мм) 6х7,5 Толщина утепления 200 мм 1921000 Заказать

Для того, чтобы получить свою личную планировку, воспользуйтесь нашим планировщиком.

При помощи планировщика можно сделать максимально подходящие планы, схемы, эскизы, чертежи уникального дома с мансардой, эркером, с одной, двумя или тремя спальнями. В результате получится проект с современной планировкой, полностью отвечающий вашим запросам.

Вы можете выбрать тип кровли: четырехскатная, двускатная и вальмовая. Двухскатную считают особенно востребованной у малометражных домов.

Самые востребованные размеры коттеджей и домов на сегодняшний день: мини - до 50 кв. М (как правило, одноэтажные); компактные - от 70 до 100 кв. М (обычно 2-этажные); большие дома - начиная от 150 кв. М и более.

Строим дуплексы - каркасные дома с 2-мя входами, рассчитанные на проживание 2-х семей. Дома строятся сразу для двух хозяев, они разделены на две половины, для обоих половин - отдельный вход.


Наши работы

Перейти в галерею


Комплектация

Площадь застройки: 45 м2
Длина: 7.5 м
Ширина: 6 м
Общая площадь: 58.82 м2
Исполнение Под ключ (с отделкой)
Фундамент Свайно-винтовой или ж/б сваи (рассчитываются отдельно).
Гидроизоляция фундамента Рубероид в два слоя.
Основание (обвязка) Из обрезного бруса 150х150 мм. 150х200 мм. согласно выбранной толщине утепления. Торцевая доска строганая 45х145/45х195+/-5 мм. согласно выбранной толщине утепления. Обработка антисептиком.
Цокольное перекрытие Строганая доска камерной сушки 45х145/45х195+/-5 мм. с шагом 590 мм. Обработка антисептиком.
Пол черновой Обрезная доска камерной сушки 20х100 мм.
Влаго-ветрозащита чернового пола Мембрана Ондутис А100.
Внешние стены Стойки каркаса из строганой доски камерной сушки 45х145/45х195+/-5 мм. с шагом 590 мм. Верхняя двойная и нижняя обвязки из строганой доски камерной сушки 45х145/45х195+/-5 мм. Разгрузочный ригель из строганой доски 45х145+/-5 мм. Укосины из строганой доски 20х95 мм.
Перегородки Стойки каркаса из строганой доски камерной сушки 45х95+/-5 мм. с шагом 590 мм. Верхняя двойная и нижняя обвязки из строганой доски 45х95+/-5 мм. Разгрузочный ригель из строганой доски камерной сушки 45х145+/-5 мм. Укосины из строганой доски камерной сушки 20х95 мм.
Сборка каркаса На гвозди.
Высота от пола до потолка Дом одноэтажный: 2,5 м. Дом с мансардой: 1-ый этаж- 2,5 м.
2-ой этаж (мансарда)- 2,3 м.
Дом в полтора и два этажа:
1-ый этаж 2,5 м.
2-ой этаж 2,4 м. в полутораэтажном доме
2,5 м. в двухэтажном доме.
Внешняя отделка стен Имитация бруса камерной сушки, сорт АВ, толщиной 17 мм. Монтаж через строганый брусок камерной сушки 45х45+/-5 мм. (вентилируемый фасад). Влаго-ветрозащитная мембрана- Ондутис А100.
Внутренняя отделка стен, перегородок Евровагонка камерной сушки, сорт АВ, толщиной 12,5 мм. по строганой рейке 20х40+/-5 мм. либо ГКЛ 12,5 мм.
Отделка потолка Евровагонка камерной сушки, сорт АВ толщиной, 12,5 мм. по строганой рейке 20х40+/-5 мм. либо ГКЛ 12,5 мм.
Пол чистовой Шпунтованная доска камерной сушки толщиной 35-36 мм. сорт АВ. по строганой рейке 20х40+/-5 мм. либо шпунтованная ДСП 16 мм. по разряженной обрешётке из строганой доски камерной сушки 20х95+/-5 мм.
Утепление (пол, потолок) Минеральная вата Knauf 150/200 мм. согласно выбранной толщине утепления.
Утепление стен Плитный утеплитель Rockwool, толщиной 150/200 мм. согласно выбранной толщине утепления.
Звукоизоляция перегородок Плитный утеплитель Rockwool, толщиной 100 мм.
Пароизоляция (стены, перегородки, пол, потолок) Плёнка Ондутис R70. Дополнительная герметизация нахлёстов/примыканий пароизоляционной плёнки клейкой лентой Delta.
Окна Двухкамерные стеклопакеты ПВХ белого цвета, профиль 60 мм. В комплекте: отливы, подоконники, москитные сетки.
Двери Входная- металлическая, утеплённая (Россия). Межкомнатные- филёнчатые.
Наличники на окна и двери Наличник деревянный, строганый, камерной сушки 70-90 мм. с двух сторон.
Лестница (при наличии второго этажа) Деревянная, одно или двухмаршевая. Перила- заводские резные, балясины- заводские точеные, устанавливаются стартовые точёные столбы. Ступени 40х200 мм. Тетива лестницы- 90х140 мм.
Крыша Двускатная, ломаная или вальмовая в соответствии с проектом.
Стропильная система Выполнена из строганой доски камерной сушки 45х145/45х195+/-5 мм. Шаг установки стропил 590 мм.
Обрешётка Выполняется из строганой доски камерной сушки толщиной 20х95+/-5 мм. Шаг крепления обрешетки 350 мм. Контробрешётка выполняется из строганого бруска камерной сушки 45х45+/-5 мм. Крепится по стропилам (вентиляционный зазор).
Подкровельная мембрана Ондутис А100
Кровельное покрытие (на выбор) Металлочерепица 0,45 мм. Цвет на выбор.
Фронтоны (при наличии) Каркас из строганой доски камерной сушки 45х145/45х195+/-5 мм. Обшиваются имитацией бруса камерной сушки, сорт АВ, толщиной 17 мм. Монтаж через строганый брусок камерной сушки 45х45+/-5 мм. (вентилируемый фасад). Влаго-ветрозащитная мембрана- Ондутис А100. Монтаж вентиляционных решёток.
Свесы крыши Ширина 400 мм. Подшиваются вагонкой камерной сушки, сорт АВ.
Терраса/балкон (при наличии) Устанавливаются опорные столбы из строганного бруса камерной сушки 140х140 мм.
Отделка потолка террасы/балкона Евровагонка камерной сушки толщиной 12,5 мм. сорт АВ.
Пол террасы/балкона Шпунтованная доска камерной сушки толщиной 35-36 мм. сорт АВ.
Ограждение террасы/балкона Перила- строганая доска. Балясины- точеные, фигурные. Либо ограждение в скандинавском стиле. Устанавливаются ступени у входа.
Допуск на геометрические параметры Составляет +/- 50 мм по длине с каждой стороны.
Допускается стыковка имитации бруса, вагонки и половой доски По всему периметру стен дома (если ширина и длина дома более 6,0 метров). Вагонки и доски пола в каждой отдельной комнате.
Допуски по имитации бруса, вагонке, доске +/- 5 мм.
В стоимость включена Доставка комплекта материала в радиусе 500 км. от г. Пестова Новгородской области и сборка дома на вашем участке.
Гарантия 5 лет.
Бытовка строительная 2,0х3,0 м. каркасно-щитовая. Стоимость 23000 руб. Остаётся на участке Заказчика.
Туалет 1,0х1,0 м. каркасно-щитовой. Стоимость 12000 руб. Остаётся на участке Заказчика.
Генератор Стоимость аренды на весь срок строительства 15000 руб. ГСМ за счёт Заказчика.

Сооружение каркасных домов осуществляется в 2-х видах: под ключ и под усадку, когда сруб будет отстаиваться определенное время.

В зимний период желательно строить дом в морозную погоду, чтобы каркас не успел промокнуть, в летний период - не под дождем.

Наиболее подходящими для дачи или сада являются бюджетные домики на винтовых сваях, в нашем онлайн-каталоге представлены одноэтажные и полуторатажные дома.

Для постоянного проживания, предлагаем очень теплые и надежные одноэтажные и двухэтажные дома на плитных и ленточных фундаментах.

Мы предлагаем 2 варианта толщины утепления: 200 мм и 150 мм. Каркасные дома с толщиной утеплителя 200 мм получаются теплее, но стоят дороже.

Дополнительные услуги


Каркасный дом для загородного участка – оптимальное сочетание стоимости и сроков возведения.

Предлагаем для реализации проект 18 – полутораэтажный дом по каркасной технологии с маленькой террасой размером 6х7,5 м.. Общая площадь всех помещений – 58.82 кв.м..

Гостинно-столовая зона, место для сна и отдыха и санузел расположены по классической планировке. Высота потолков – 2,45 м. Во всех жилых помещениях предусмотрена установка двойных окон в зимнем варианте – в светлое время суток в доме не потребуется электрическое освещение. Межкомнатные двери с филенками, 0,8х2,0 м.

Крыша дома – двускатная, кровельное покрытие – ондулин. Цвет крыши и внешнюю отделку дома вы выбираете сами согласно своему вкусу и предпочтениям, а наши специалисты возведут дом для вас в Воронеже с учетом всех пожеланий.


Популярные проекты


Дома из бруса 6х8 Каркасные дома 4х5 Каркасные дома 7х9
хит продаж
Тип: с террасой
Общая площадь: 2
1933000
от 1841000
хит продаж
Тип:
Общая площадь: 2
2426500
от 2311000
хит продаж
Тип: с большой террасой
Общая площадь: 2
2951500
от 2811000
Дома из бруса

Заказать или задать вопрос



Заказать или задать вопрос

Заказать звонок