Дома под ключ в Воронеже
Отзывы из Яндекс Карт
4.9
112 отзывов
Дополнительные услуги 88%
2 154 оценок
Комплектации 89%
1 535 оценок
Планировки 90%
2 484 оценок
Проекты 93%
2 231 оценок
С
Радомир Ж.04/19/2025 г.
Заказывал и дом, и баню под ключ — оба объекта сдали без задержек, причём баня была готова даже на неделю раньше, что стало приятным сюрпризом.
Отзывы из Google Карт
4.8
67 отзывов
Дополнительные услуги 88%
2 154 оценок
Комплектации 89%
1 535 оценок
Планировки 90%
2 484 оценок
Проекты 93%
2 231 оценок
С
Адам Щербаков04/28/2026 г.
Брал у них готовый проект бани 6х7,5 с бассейном и душевой, очень понравилось как организована вентиляция, но печку поставили слабоватую для такого объёма, сам поменял потом на более мощную, а так всё ок.
С
Евгения Щ.03/21/2026 г.
Баню с бассейном и тремя комнатами отдыха — это я устраиваю себе рай. «БрусДома» справились, но срок сдачи сдвинули на месяц (сказывались дожди и мои капризы по облицовке). Бассейн работает, пар отличный — прощаю им задержку.
С
Емельян Зорин02/23/2026 г.
Крышу на доме 9х11 с мансардой сделали качественно, но забыли установить снегозадержатели. Когда позвонил, извинились и приехали на следующий день, без доплат.
С
Люся Щ.08/20/2025 г.
Спасибо компании за мой чудесный дом. Я очень переживала, как всё пройдет, но специалисты всё сделали на высшем уровне. Дом очень теплый и уютный, пахнет настоящим деревом. Зимой проверили – жить можно комфортно, никаких сквозняков и промерзаний.
Отзывы из 2гис
4.9
42 отзывов
Дополнительные услуги 88%
2 154 оценок
Комплектации 89%
1 535 оценок
Планировки 90%
2 484 оценок
Проекты 93%
2 231 оценок
С
Евгений Козлов01/27/2026 г.
Взял проект с террасой и навесом для машины. С навесом чуть не промахнулись — столбы поставили не там, где я хотел. Хорошо, заметил сразу, переставили. Теперь машина под крышей, и на террасе дождь не заливает. Удобно.
С
Сеня Шестаков01/31/2025 г.
Работая с компанией "Брус дома", я получил не просто готовую баню, а полное сопровождение и консультации на всех этапах, от выбора фундамента до первого протапливания, что для меня как для новичка было бесценно. Менеджер Антон терпеливо отвечал на все мои вопросы, а бригадир Алексей на стройке всегда предлагал практичные и разумные решения. Спасибо за настоящий сервис.


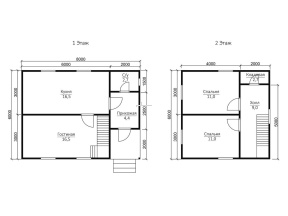
Проект №22 Дом в 2 этажа 6х8

каркас из строганой доски
Создайте свой план для этого проекта
и отправьте его нам на расчет в один клик.
Каркасный дом (150 мм) 6х8 Толщина утепления 150 мм 2311000 Заказать
Каркасный дом (200 мм) 6х8 Толщина утепления 200 мм 2521000 Заказать

Для того, чтобы получить свою личную планировку, воспользуйтесь нашим планировщиком.

При помощи планировщика можно сделать максимально подходящие планы, схемы, эскизы, чертежи уникального дома с мансардой, эркером, с одной, двумя или тремя спальнями. В результате получится проект с современной планировкой, полностью отвечающий вашим запросам.

Вы можете выбрать тип кровли: четырехскатная, двускатная и вальмовая. Двухскатную считают особенно востребованной у малометражных домов.

Самые востребованные размеры коттеджей и домов на сегодняшний день: мини - до 50 кв. М (как правило, одноэтажные); компактные - от 70 до 100 кв. М (обычно 2-этажные); большие дома - начиная от 150 кв. М и более.

Строим дуплексы - каркасные дома с 2-мя входами, рассчитанные на проживание 2-х семей. Дома строятся сразу для двух хозяев, они разделены на две половины, для обоих половин - отдельный вход.


Наши работы

Перейти в галерею


Комплектация

Площадь застройки: 48 м2
Длина: 6 м
Ширина: 8 м
Общая площадь: 70 м2
Исполнение Под ключ (с отделкой)
Фундамент Свайно-винтовой или ж/б сваи (рассчитываются отдельно).
Гидроизоляция фундамента Рубероид в два слоя.
Основание (обвязка) Из обрезного бруса 150х150 мм. 150х200 мм. согласно выбранной толщине утепления. Торцевая доска строганая 45х145/45х195+/-5 мм. согласно выбранной толщине утепления. Обработка антисептиком.
Цокольное перекрытие Строганая доска камерной сушки 45х145/45х195+/-5 мм. с шагом 590 мм. Обработка антисептиком.
Пол черновой Обрезная доска камерной сушки 20х100 мм.
Влаго-ветрозащита чернового пола Мембрана Ондутис А100.
Внешние стены Стойки каркаса из строганой доски камерной сушки 45х145/45х195+/-5 мм. с шагом 590 мм. Верхняя двойная и нижняя обвязки из строганой доски камерной сушки 45х145/45х195+/-5 мм. Разгрузочный ригель из строганой доски 45х145+/-5 мм. Укосины из строганой доски 20х95 мм.
Перегородки Стойки каркаса из строганой доски камерной сушки 45х95+/-5 мм. с шагом 590 мм. Верхняя двойная и нижняя обвязки из строганой доски 45х95+/-5 мм. Разгрузочный ригель из строганой доски камерной сушки 45х145+/-5 мм. Укосины из строганой доски камерной сушки 20х95 мм.
Сборка каркаса На гвозди.
Высота от пола до потолка Дом одноэтажный: 2,5 м. Дом с мансардой: 1-ый этаж- 2,5 м.
2-ой этаж (мансарда)- 2,3 м.
Дом в полтора и два этажа:
1-ый этаж 2,5 м.
2-ой этаж 2,4 м. в полутораэтажном доме
2,5 м. в двухэтажном доме.
Внешняя отделка стен Имитация бруса камерной сушки, сорт АВ, толщиной 17 мм. Монтаж через строганый брусок камерной сушки 45х45+/-5 мм. (вентилируемый фасад). Влаго-ветрозащитная мембрана- Ондутис А100.
Внутренняя отделка стен, перегородок Евровагонка камерной сушки, сорт АВ, толщиной 12,5 мм. по строганой рейке 20х40+/-5 мм. либо ГКЛ 12,5 мм.
Отделка потолка Евровагонка камерной сушки, сорт АВ толщиной, 12,5 мм. по строганой рейке 20х40+/-5 мм. либо ГКЛ 12,5 мм.
Пол чистовой Шпунтованная доска камерной сушки толщиной 35-36 мм. сорт АВ. по строганой рейке 20х40+/-5 мм. либо шпунтованная ДСП 16 мм. по разряженной обрешётке из строганой доски камерной сушки 20х95+/-5 мм.
Утепление (пол, потолок) Минеральная вата Knauf 150/200 мм. согласно выбранной толщине утепления.
Утепление стен Плитный утеплитель Rockwool, толщиной 150/200 мм. согласно выбранной толщине утепления.
Звукоизоляция перегородок Плитный утеплитель Rockwool, толщиной 100 мм.
Пароизоляция (стены, перегородки, пол, потолок) Плёнка Ондутис R70. Дополнительная герметизация нахлёстов/примыканий пароизоляционной плёнки клейкой лентой Delta.
Окна Двухкамерные стеклопакеты ПВХ белого цвета, профиль 60 мм. В комплекте: отливы, подоконники, москитные сетки.
Двери Входная- металлическая, утеплённая (Россия). Межкомнатные- филёнчатые.
Наличники на окна и двери Наличник деревянный, строганый, камерной сушки 70-90 мм. с двух сторон.
Лестница (при наличии второго этажа) Деревянная, одно или двухмаршевая. Перила- заводские резные, балясины- заводские точеные, устанавливаются стартовые точёные столбы. Ступени 40х200 мм. Тетива лестницы- 90х140 мм.
Крыша Двускатная, ломаная или вальмовая в соответствии с проектом.
Стропильная система Выполнена из строганой доски камерной сушки 45х145/45х195+/-5 мм. Шаг установки стропил 590 мм.
Обрешётка Выполняется из строганой доски камерной сушки толщиной 20х95+/-5 мм. Шаг крепления обрешетки 350 мм. Контробрешётка выполняется из строганого бруска камерной сушки 45х45+/-5 мм. Крепится по стропилам (вентиляционный зазор).
Подкровельная мембрана Ондутис А100
Кровельное покрытие (на выбор) Металлочерепица 0,45 мм. Цвет на выбор.
Фронтоны (при наличии) Каркас из строганой доски камерной сушки 45х145/45х195+/-5 мм. Обшиваются имитацией бруса камерной сушки, сорт АВ, толщиной 17 мм. Монтаж через строганый брусок камерной сушки 45х45+/-5 мм. (вентилируемый фасад). Влаго-ветрозащитная мембрана- Ондутис А100. Монтаж вентиляционных решёток.
Свесы крыши Ширина 400 мм. Подшиваются вагонкой камерной сушки, сорт АВ.
Терраса/балкон (при наличии) Устанавливаются опорные столбы из строганного бруса камерной сушки 140х140 мм.
Отделка потолка террасы/балкона Евровагонка камерной сушки толщиной 12,5 мм. сорт АВ.
Пол террасы/балкона Шпунтованная доска камерной сушки толщиной 35-36 мм. сорт АВ.
Ограждение террасы/балкона Перила- строганая доска. Балясины- точеные, фигурные. Либо ограждение в скандинавском стиле. Устанавливаются ступени у входа.
Допуск на геометрические параметры Составляет +/- 50 мм по длине с каждой стороны.
Допускается стыковка имитации бруса, вагонки и половой доски По всему периметру стен дома (если ширина и длина дома более 6,0 метров). Вагонки и доски пола в каждой отдельной комнате.
Допуски по имитации бруса, вагонке, доске +/- 5 мм.
В стоимость включена Доставка комплекта материала в радиусе 500 км. от г. Пестова Новгородской области и сборка дома на вашем участке.
Гарантия 5 лет.
Бытовка строительная 2,0х3,0 м. каркасно-щитовая. Стоимость 23000 руб. Остаётся на участке Заказчика.
Туалет 1,0х1,0 м. каркасно-щитовой. Стоимость 12000 руб. Остаётся на участке Заказчика.
Генератор Стоимость аренды на весь срок строительства 15000 руб. ГСМ за счёт Заказчика.

Сооружение каркасных домов осуществляется в 2-х видах: под ключ и под усадку, когда сруб будет отстаиваться определенное время.

В зимний период желательно строить дом в морозную погоду, чтобы каркас не успел промокнуть, в летний период - не под дождем.

Наиболее подходящими для дачи или сада являются бюджетные домики на винтовых сваях, в нашем онлайн-каталоге представлены одноэтажные и полуторатажные дома.

Для постоянного проживания, предлагаем очень теплые и надежные одноэтажные и двухэтажные дома на плитных и ленточных фундаментах.

Мы предлагаем 2 варианта толщины утепления: 200 мм и 150 мм. Каркасные дома с толщиной утеплителя 200 мм получаются теплее, но стоят дороже.

Дополнительные услуги


Каркасный дом для загородного участка – оптимальное сочетание стоимости и сроков возведения.

Предлагаем для реализации проект 22 – двухэтажный дом по каркасной технологии с размером 6х8 м.. Общая площадь всех помещений – 70 кв.м..

Гостинно-столовая зона, место для сна и отдыха и санузел расположены по классической планировке. Высота потолков – 2,45 м. Во всех жилых помещениях предусмотрена установка двойных окон в зимнем варианте – в светлое время суток в доме не потребуется электрическое освещение. Межкомнатные двери с филенками, 0,8х2,0 м.

Крыша дома – двускатная, кровельное покрытие – ондулин. Цвет крыши и внешнюю отделку дома вы выбираете сами согласно своему вкусу и предпочтениям, а наши специалисты возведут дом для вас в Воронеже с учетом всех пожеланий.


Популярные проекты


Дома из бруса 6х4 Дома из бруса 6х8 Маленькие каркасные дома
хит продаж
Тип: с террасой
Общая площадь: 2
1901500
от 1811000
хит продаж
Тип:
Общая площадь: 2
1681000
от 1601000
хит продаж
Тип: с балконом, с маленькой террасой
Общая площадь: 2
1565500
от 1491000
Дома из бруса

Заказать или задать вопрос



Заказать или задать вопрос

Заказать звонок